Cocinas de Diseño | Etapa del proyecto
01.
Diseño
El arquitecto a cargo del proyecto realizará una visita a terreno para rectificar medidas, analizar y definir la mejor materialidad y funcionalidad del proyecto. En el anteproyecto se presenta un render 3D para que el cliente visualice el trabajo antes de su ejecución.
02.
Fabricación
Una vez desarrollado el plano final, se comienza la fabricación de tu proyecto en nuestro taller. Este proceso se apega a los plazos definidos con el cliente.
03.
Instalación
Un equipo especializado instala el proyecto y se asigna un supervisor para la correcta ejecución hasta la entrega final.

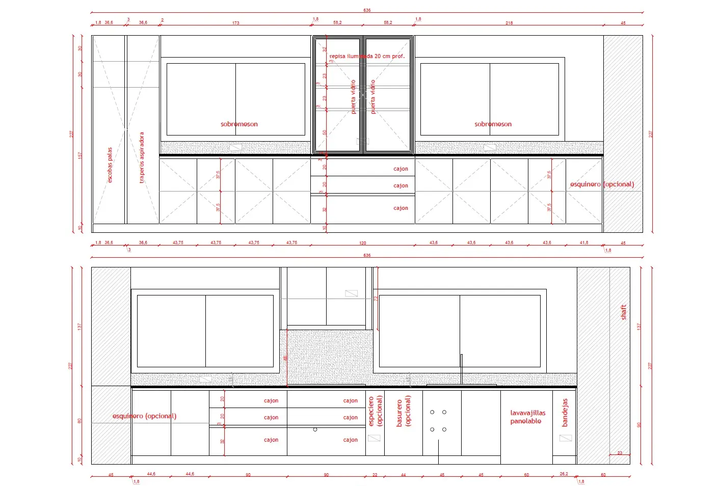
PlanimetrÃa
Render 3D

Proyecto Final
Closet personalizado | Etapa del proyecto
01.
Diseño
El arquitecto a cargo del proyecto realizará una visita a terreno para rectificar medidas, analizar y definir la mejor materialidad y funcionalidad del proyecto. En el anteproyecto se presenta un render 3D para que el cliente visualice el trabajo antes de su ejecución.
02.
Fabricación
Una vez desarrollado el plano final, se comienza la fabricación de tu proyecto en nuestro taller. Este proceso se apega a los plazos definidos con el cliente.
03.
Instalación
Un equipo especializado instala el proyecto y se asigna un supervisor para la correcta ejecución hasta la entrega final.

PlanimetrÃa
Render 3D
Proyecto Final
Rack de TV | Etapa del proyecto
01.
Diseño
El arquitecto a cargo del proyecto realizará una visita a terreno para rectificar medidas, analizar y definir la mejor materialidad y funcionalidad del proyecto. En el anteproyecto se presenta un render 3D para que el cliente visualice el trabajo antes de su ejecución.
02.
Fabricación
Una vez desarrollado el plano final, se comienza la fabricación de tu proyecto en nuestro taller. Este proceso se apega a los plazos definidos con el cliente.
03.
Instalación
Un equipo especializado instala el proyecto y se asigna un supervisor para la correcta ejecución hasta la entrega final.

PlanimetrÃa
Render 3D

Proyecto Final
Remodelación de espacios | Etapa del proyecto
01.
Diseño
El arquitecto a cargo del proyecto realizará una visita a terreno para rectificar medidas, analizar y definir la mejor materialidad y funcionalidad del proyecto. En el anteproyecto se presenta un render 3D para que el cliente visualice el trabajo antes de su ejecución.
02.
Fabricación
Una vez desarrollado el plano final, se comienza la fabricación de tu proyecto en nuestro taller. Este proceso se apega a los plazos definidos con el cliente.
03.
Obra y entrega
Un equipo especializado realiza las obras necesarias para entregar el proyecto al cliente con el sello que nos caracteriza.


